SERVICE TELEFON
+49 (0) 5 51 / 6 93 23-7
+49 (0) 5 21 / 30 36 -0
Zahlart Bar
Zahlart Vorauskasse
Zahlart Bankeinzug
Zahlart Nachnahme
Zahlart Paypalplus
Zahlart Sofortueberweisung
Zahlart Rechnung

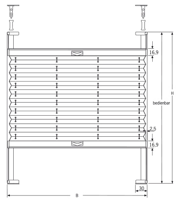
Plissee Messanleitung - Modell S4 KL Klebeprofil



Plissee richtig messen Allgemeine Hinweise
Messen Sie an allen vier Seiten die Breite der Dichtung D wegen eventueller Toleranzen.

Plissee richtig messen
D kleiner oder gleich 5 mm

Bestellbreite = lichte Breite - 4mm
Bestellhöhe = lichte Höhe - 8mm

Die lichte Breite LB und die lichte Höhe LH vor der Dichtung messen!


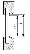
D größer 5 mm

Bestellbreite = lichte Glasbreite + 7mm
Bestellhöhe = lichte Glashöhe + 3mm

Die lichte Glasbreite LGB und die lichte Glashöhe LGH zwischen der Dichtung messen!

Plissee richtig messen
Plissee richtig messen